Land Available For Lease @ N Holbrook St & Plymouth Rd

N Holbrook St & Plymouth Rd, Plymouth, MI 48170

To view listing contacts please sign in with your Pro account or create a pro account.

Richard K.

Company: requires Pro account

Email: requires Pro account

Phone: requires Pro account



Choose nearby businesses to show on the map:

Yelp

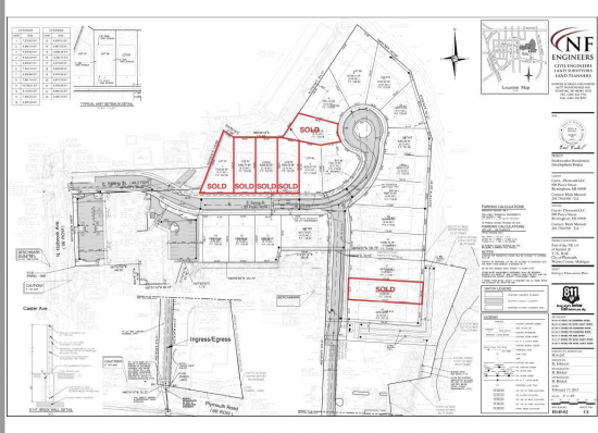
Residential Lots Available Near Downtown Plymouth This space offers accomodations for: residential.

Pricing: Negotiable

Availability: Now

Listing ID: 3346687


Save and Continue Browsing

Rate: Contact for price

Type: Land

Learn More:

Company Name
Name of your company
Describe your location and space requirements
Enter additional requirements that you may have
Processing ...

We respect your privacy.

Get access to listing contacts with a Pro Account